
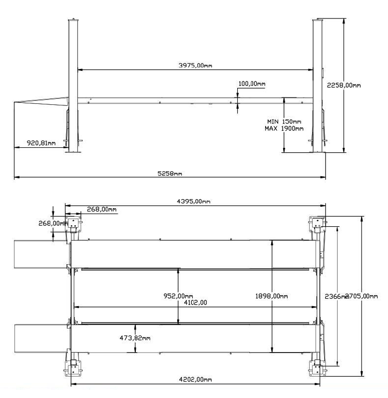
Product Introduction:
1, This parking system is designed of two spaces of up and down as one unit.
2, The bottom car can go in and out directly. When the upper space needs to park a car, the car in the bottom should be driven out;
3, Hydraulic drive, chain balancing device to ensure the balance both ends of rise and fall’;
4, Low noise, smooth operation, save energy, low carbon and environmental protection;
5, It can be widely used in hotels, enterprises and public institutions and residential area.